Της Βίκυς Κουρλιμπίνη
Στην έγκριση των περιβαλλοντικών όρων για την κατασκευή και λειτουργία νέας ξενοδοχειακής μονάδας από τον όμιλο Sani/Ikos στα Χανιά προχώρησε το υπουργείο Περιβάλλοντος και Ενέργειας.
Όπως αναφέρεται στη σχετική απόφαση που αναρτήθηκε στη Διαύγεια, η επένδυση αφορά στην κατασκευήνέου κύριου ξενοδοχειακού καταλύματος, κλασσικού, κατηγορίας πέντε αστέρων, δυναμικότητας 1.280 κλίνες – 414 δωμάτια, καθώς και στη λειτουργία και τυχόν ανακαίνιση –συντήρηση του, στη θέση Κάμπος - Λειβάδια", του δήμου Κισσάμου της Περιφερειακής Ενότητας Χανίων.
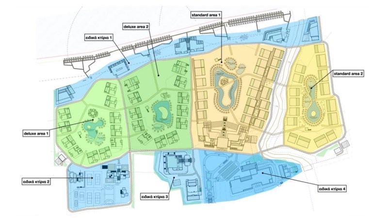
Το σύνολο του έργου δυναμικότητας οργανώνεται σε 8 περιοχές:
- την περιοχή δωματίων deluxe 1
- την περιοχή δωματίων deluxe 2
- την περιοχή δωματίων standard 1
- την περιοχή δωματίων standard 2
- την περιοχή του παραλιακού μετώπου, με τα κτίρια εστιατορίων και γυμναστηρίου (ειδικά κτίρια 1),
- την περιοχή των αθλητικών εγκαταστάσεων (ειδικά κτίρια 2),
- την περιοχή του spa και θεάτρου (ειδικά κτίρια 3) και
- την περιοχή των υποστηρικτικών εγκαταστάσεων (ειδικά κτίρια 4).

Επίσης, προβλέπεται για την εξυπηρέτηση των αναγκών του έργου, μεταξύ άλλων, η κατασκευή από τονφορέα του έργου:
1. Κολυμβητικών δεξαμενών, συνολικής επιφάνειας περίπου 5.830m2 και συνολικού όγκου 7.600m3. Ειδικότερα, προβλέπεται να κατασκευαστούν τέσσερεις εξωτερικές, μία θερμαινόμενη εσωτερική, τέσσερεις θερμαινόμενες εξωτερικές και δεκαέξι ιδιωτικές κολυμβητικές δεξαμενές.
2. Εσωτερικού οδικού δικτύου.
3. Εσωτερικού δικτύου ύδρευσης
4. Εσωτερικού δικτύου αποχέτευσης
5. Εξωτερικού δικτύου αποχέτευσης για σύνδεση με την Ε.Ε.Λ. Δήμου Κισσάμου.
6. Εξωτερικού δικτύου ύδρευσης για σύνδεση με τη δεξαμενή του Δήμου στη θέση "Παρθενώνας”Δημοτικής Κοινότητας Κισσάμου.
7. Γεφυρών, για την επικοινωνία των δύο τμημάτων του γηπέδου του έργου, που χωρίζονται από τορέμα.
8. Χώρων στάθμευσης.
9. Φυτευτικού χώρου, κατάλληλα διαμορφωμένου.
Η έναρξη λειτουργίας τουresort, που θα ονομαστεί Ikos Kissamos, αναμένεται το Μάιο του 2025.
Για τη δημιουργία της ενιαίας έκτασης των 200 χιλιάδων τ.μ., ο όμιλος απέκτησε και ενοποίησε περισσότερα από 30 επιμέρους οικόπεδα.
Η συνολική επένδυση του ομίλου Sani/Ikos στην Κρήτη, θα ξεπεράσει τα 125 εκατ. ευρώ, ενώ θα δημιουργηθούν περισσότερες από 750 νέες θέσεις εργασίας.
Το Ikos Kissamos θα είναι το πρώτο ξενοδοχειακό συγκρότημα υπό το εμπορικό σήμα της Ikos Resorts στην Κρήτη.
Ο όμιλος έχει επίσης στο χαρτοφυλάκιό του τα Ikos Oceania και Ikos Olivia στην Χαλκιδική, Ikos Dassia και Ikos Odisia στην Κέρκυρα, Ikos Aria στην Κω, καθώς επίσης Ikos Andalusia στην Μαρμπέλα-Εστεπόνα και το νέο Ikos Porto Petro στην Μαγιόρκα της Ισπανίας.